Tato webová stránka potřebuje váš souhlas pro používání cookies, které slouží pro personalizaci obsahu a reklam, analýzy návštěvnosti a další účely.

Souhlas se všemi cookies udělíte kliknutím na tlačítko „Přijmout vše“. Chcete-li přijímat pouze technicky nezbytné cookies, klikněte na tlačítko „Jen nezbytné“.

Přijmout vše Jen nezbytné Nastavení
Menu
logo VH Architekti s.r.o.

Horní menu

  • Úvod
  • Portfolio
  • Služby
  • O nás
  • Kariéra
  • Kontakt

Interiér Atona II Blansko


Štítky:
  • Interiér
Autoři:          Ing. arch. Veronika Hladíková, Ing. arch. Kateřina Bušová, spolupráce s Ateliérem 99 s.r.o.
Lokalita:       Blansko
Typ:              interiér, novostavba, administrativa
Rok:              2017 - 2021
Status:         realizace

 

Interiér novostavby administrativní a výrobní haly jsme chtěli propojit se zdařilým návrhem exteriéru od kolegů z Ateliéru A 99, kde byly použity cortenové plechy pro obklad fasády. Vizuálně jsme se snažili držet jednoduchý koncept přírodních povrchových materiálů, které jsou použity v celém interiéru.
 
INT_Atona II Blansko
INT_Atona II Blansko
INT_Atona II Blansko
INT_Atona II Blansko
INT_Atona II Blansko
INT_Atona II Blansko
INT_Atona II Blansko
INT_Atona II Blansko
INT_Atona II Blansko
INT_Atona II Blansko
INT_Atona II Blansko
INT_Atona II Blansko
INT_Atona II Blansko
INT_Atona II Blansko
INT_Atona II Blansko
INT_Atona II Blansko
INT_Atona II Blansko
INT_Atona II Blansko
INT_Atona II Blansko
INT_Atona II Blansko
INT_Atona II Blansko
INT_Atona II Blansko
INT_Atona II Blansko
INT_Atona II Blansko
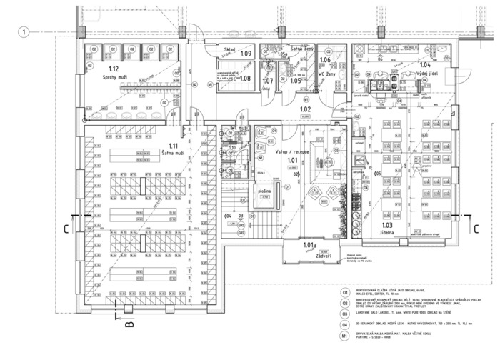
Návrh interiéru 1.NP
Návrh interiéru 1.NP
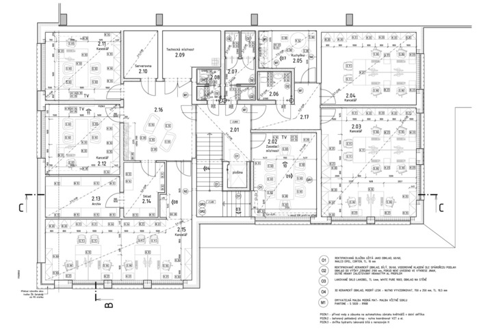
Návrh interiéru 2.NP
Návrh interiéru 2.NP

Zpět na přehled

VH Architekti s.r.o.

Vodova 2314/101, 4.patro, 612 00 Brno

Zaslat poptávku
www.vharchitekti.cz info@vharchitekti.cz
facebook linkedIn instagram
Zobrazit na mapě

© 2025 VH Architekti s.r.o Kontaktovat webmastera, Mapa stránek
ANTEE s.r.o. - Tvorba webových stránek, Redakční systém IPO